所屬行業:環保設備
產品類別:自有產品
應用領域:水處理、制藥、化工、食品和飲料、涂料和油漆、金屬加工 、汽車工業、石化、油田、電廠、鋼廠等行業。
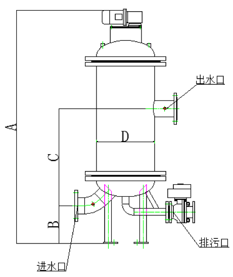
全自動反沖洗過濾器主要結構部件包括殼體、減速電機、傳動軸、不銹鋼濾網、反沖洗轉臂組件、壓力控制器、電動排污閥、電控箱等。本機具有1、差壓控制,2、時間控制,3、手動控制三種模式。第一種模式下,當進水口與出水口的壓差大于預設值時,由差壓控制器傳出信號,減速電機和電動排污閥同時得電工作,反沖洗轉臂組件管道內部與大氣連通。
特點:
■
可連續運行。反沖洗時,系統連續工作,無需停機
■ 耗水量極少。不超過總流量的1%,整個清洗過程系統壓力波動小
■ 濾網由不銹鋼制做,有較強的抗腐蝕能力,使用壽命長
■
具有時間控制、壓差控制及手動控制三種控制方式

Address:上海市松江區中創路68號5幢3層
技術支持:02167699957
傳真:02167699958
E-mail:cooperate@www.taot2.com
了解更多咨詢 !